トップへ 前項目 次項目 索引

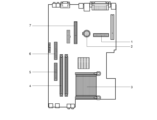
マザーボード

画像

  1. フロッピーコネクタ(FDD)
    フロッピーディスクドライブが接続されています。
  2. 内蔵バッテリ
    本パソコンの時計機能とBIOSセットアップで設定した設定値を保存するためのバッテリです。標準の使用状態(1日約8時間)で約5年間お使いになれます。
  3. ヒートシンク
  4. DIMMスロット
    メモリを取り付けます。
    パソコン本体前面から見て右から、CH A、CH Bと並んでいます。CH Aには、標準のメモリが搭載されています。
  5. プライマリIDEコネクタ(IDE1/2)
    標準のハードディスクが接続されています。
  6. セカンダリIDEコネクタ(IDE3/4)
    標準のCD-ROMドライブが接続されています。
  7. AGPコネクタ
    カスタムメイドでRADEON 9200を選択している場合、ここにグラフィックスカードを取り付けます。

トップへ 前項目 次項目 索引

All Rights Reserved, Copyright© FUJITSU LIMITED 2004