トップへ 前項目 次項目 索引

マザーボード

画像

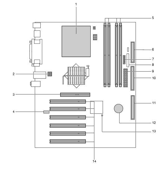
  1. ヒートシンク
  2. 電源コネクタ
  3. AGP カードスロット
    カスタムメイドでRADEON 9800 PROを選択している場合、ここにグラフィックカードが取り付けられています。
  4. CD INコネクタ(黒)
    CD-ROMドライブからのAUDIOケーブルを接続します。
  5. メモリスロット
    メモリを取り付けます。
    パソコン本体前面から見て、手前から、DIMM4、DIMM2、DIMM3、DIMM1の順に並んでいます。DIMM1とDIMM2には、標準のメモリが搭載されています。
  6. フロッピーコネクタ
    フロッピーディスクドライブが接続されています。
  7. 電源センサコネクタ
  8. フロントパネルコネクタ
    フロントパネルからのスイッチケーブルを取り付けます。
  9. 電源コネクタ
  10. セカンダリIDEコネクタ
    標準のCD-ROMドライブが接続されています。
  11. プライマリIDEコネクタ
    標準のハードディスクが接続されています(IDE-RAIDモデルを除く)。
  12. 内蔵バッテリ
    本パソコンの時計機能の設定とBIOSで設定したセットアップ設定値を保存するためのバッテリです。標準の使用状態(1日8時間)で約5年間お使いになれます。
  13. メモリ電源LED
    メモリに電源が供給されている場合に点灯します。
  14. PCIスロット
    PCIカードを取り付けます。パソコン上部からPCI スロット1〜6の順に並んでいます。
    SCSIカードを取り付ければ、SCSI規格のハードディスクや光磁気ディスクドライブを取り付けられるようになります。
ポイント

トップへ 前項目 次項目 索引

All Rights Reserved, Copyright© FUJITSU LIMITED 2003