トップへ 前項目 次項目 索引

マザーボード

画像

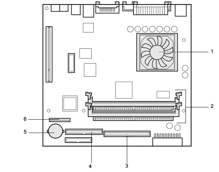
  1. CPU
  2. DIMMスロット
    メモリを取り付けます。
    メモリを増設すると、一度に読み込めるデータの量が増え、パソコンの処理能力があがります。
    パソコン本体の前面から見て、奥からDIMM1、DIMM2と並んでいます。
    DIMM1には、標準のメモリが接続されています。
  3. セカンダリIDEコネクタ(IDE2)
    標準のCD-ROMが接続されています(CD-ROMドライブモデル)。
  4. プライマリIDEコネクタ(IDE1)
    標準のハードディスクが接続されています。
  5. 内蔵バッテリ
    本パソコンの時計機能とBIOSセットアップで設定した各設定を保存するためのバッテリです。約5年間お使いになれます。
  6. フロッピーコネクタ(FDD)

トップへ 前項目 次項目 索引

All Rights Reserved, Copyright(c) FUJITSU LIMITED 2001