トップへ 前項目 次項目 索引

パソコン本体下面

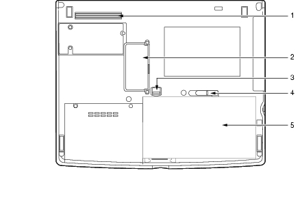
画像

  1. ポートリプリケータ接続コネクタ
    ポートリプリケータを接続するためのコネクタです。
    「ハードウェア」−「ポートリプリケータについて」
  2. 拡張RAMモジュールスロット
    本パソコンのメモリが取り付けられています。
    取り付けられているメモリを交換して、メモリを増やすこともできます。
    「ハードウェア」−「メモリについて」
  3. 解除ボタン
    内蔵バッテリパックロックを解除する場合にスライドさせます。
  4. 内蔵バッテリパックロック
    内蔵バッテリパックを取り付け/取り外しをする場合にスライドさせます。
  5. 内蔵バッテリパック
    内蔵バッテリパックが装着されています。
    「ハードウェア」−「バッテリパックを交換する」

トップへ 前項目 次項目 索引

All Rights Reserved, Copyright(c) FUJITSU LIMITED 2002