トップへ 前項目 次項目 索引

6 各種ドライブを取り付ける

本ワークステーションには、ファイルベイを3個、内蔵ハードディスクベイを4個、フロッピーディスクドライブベイを1個、搭載しており、各種ドライブを取り付けることができます。

画像

重要
警告
PLラベル


PLラベル


PLラベル

注意
PLラベル


PLラベル


PLラベル

■ IDE規格の内蔵オプション(ハードディスクドライブを除く)について

IDE規格の内蔵オプションはセカンダリIDE側に接続されているケーブルに接続します。

ドライブの設定は次のようにしてください。

 
マスタ
スレーブ
CD-ROM/CD-R/RWを
1台搭載の場合
CD-ROM/CD-R/RW

CD-ROM/CD-R/RWを
2台搭載の場合
CD-ROM/CD-R/RW
CD-ROM/CD-R/RW

ディスクベイを取り付ける/取り外す

フロッピーディスクドライブの交換や内蔵ハードディスクドライブの取り付けの場合に、必要に応じてディスクベイを取り外して作業を行います。

■ フロントディスクベイを取り外す

  1. トップカバーと左サイドカバーを取り外します(Click)。
  2. 信号ケーブルおよび電源コネクタを、ドライブからすべて取り外します。
  3. ロックを押しながら、固定金具を矢印方向に引き出します。
画像

  1. フロントディスクベイを矢印方向に引いて、ワークステーション本体から取り外します。
画像

■ フロントディスクベイを取り付ける

  1. フロントディスクベイのガイドレールをワークステーション本体の溝に合わせます。
  2. フロントディスクベイをカチッとはまるまで、矢印方向に押します。
画像

  1. ロックを、カチッとはまるまで押し込みます。
  2. 信号ケーブルおよび電源コネクタを、ドライブに接続します。
重要

■ サイドディスクベイを取り外す

  1. サイドディスクベイの2ヶ所のネジをゆるめます。
画像

  1. ロックを矢印方向1に押しながら、サイドディスクベイを矢印方向2に引き出します。
画像

  1. サイドディスクベイを矢印方向に引いて、ワークステーション本体から取り外します。
画像

■ サイドディスクベイを取り付ける

  1. サイドディスクベイの突起をワークステーション本体の穴にはめ込みます。
画像

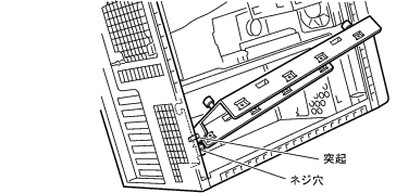
  1. ネジ穴とサイドディスクベイの突起を合わせます。
画像

  1. ロックを矢印方向1に押しながら、サイドディスクベイを矢印方向2にスライドさせ、溝に合わせてはめ込みます。
画像

  1. ロックを戻します。
  2. サイドディスクベイの2ヶ所のネジをしめます。
画像


トップへ 前項目 次項目 索引

All Rights Reserved, Copyright(c) FUJITSU LIMITED 2002